Magazzino in Vendita a Milano
15 mq
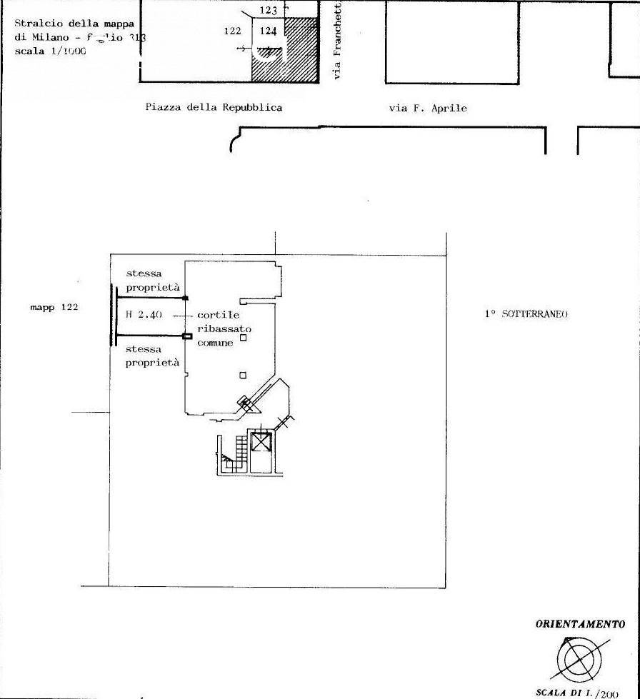
La GALLUCCI IMMOBILIARE propone in Vendita un comodo box/Magazzino situato a Milano (MI), in una delle piazze più importanti e conosciute: Piazza della Repubblica n. 22.
La posizione lo rende un investimento interessante per chi cerca una soluzione pratica e funzionale vivendo o lavorando in zona.
Il Magazzino si presenta, infatti, non solo come una soluzione ideale per attività commerciali e imprenditoriali, offrendo spazi vantaggiosi per lo stoccaggio di merci e materiali, ma anche per privati.
Informazioni immobile
Codice: 1917
Contratto: Vendita
Tipologia: Magazzino
Regione: Lombardia
Provincia: Milano
Comune: Milano
Prezzo: € 35.000
Totale mq: 15 mq
Stato conservazione: Buono
Contattaci
Immobiliare 2.0 s.r.l
Via Milano 68
Pescara (PE)
Telefono 0859433360
Cellulare 3200643222
gallucci.immobiliare@gmail.com
Condividi
Immobili simili
Ultimo aggiornamento 24-09-2025















